OUR COMMUNITY  -  OUR WELLBEING  -  OUR FUTURE 

Your Community Centre Needs Your Vote

Look below to see the centre re-imagined.

Impression of the hall with Padel court and cafe area from balcony

Looking back towards the barista cafe and entrance

Shows the back of the hall with flexible activity area in use fo 5-a-side looking towards the entrance

Social cafe area and Padel court

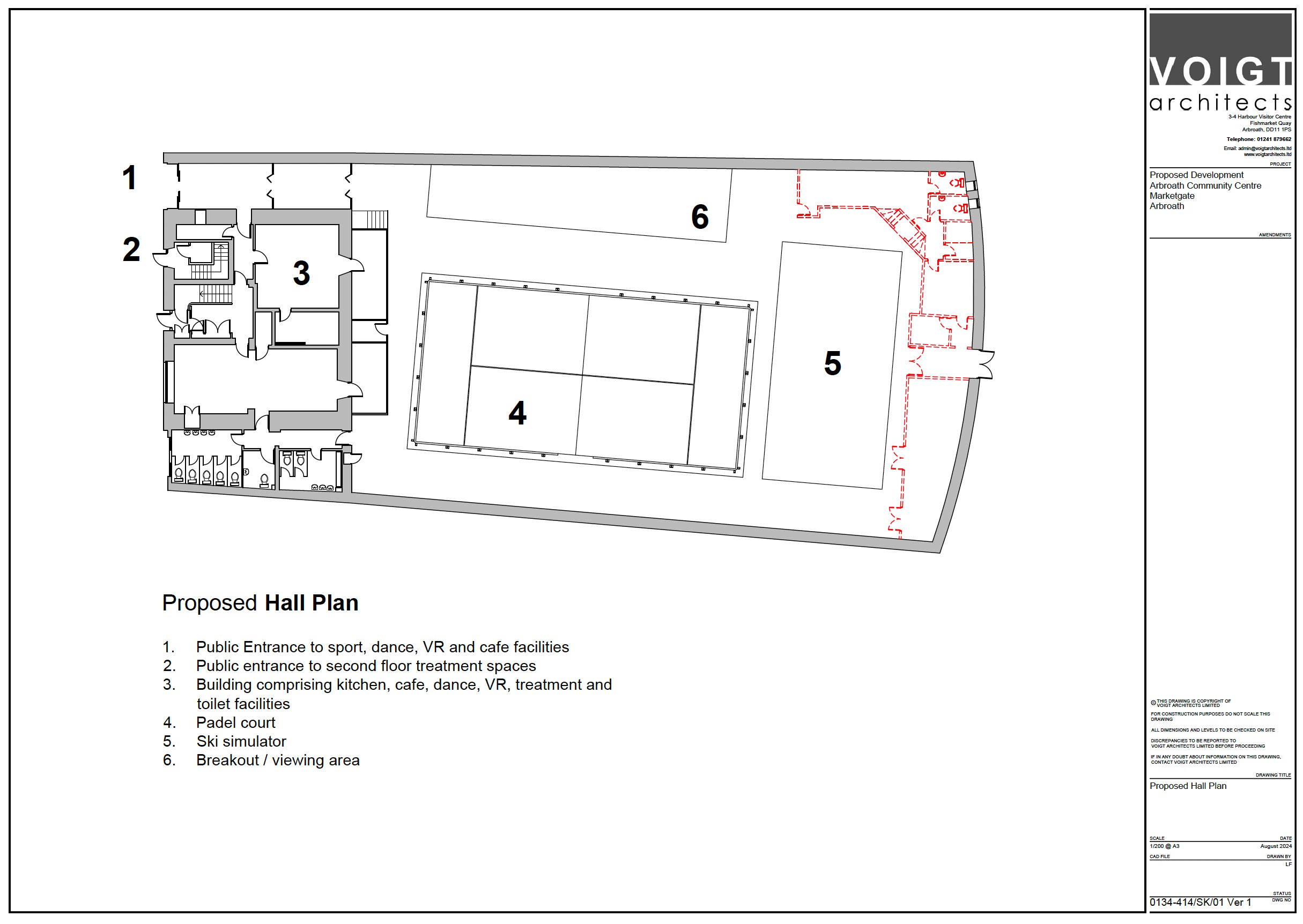
Font of building - ground floor

  • Barsita training space
  • Meeting rooms
  • VR room
  • Treatment rooms

Front of building - second floor

  • VR room
  • Dance/Class/Studio
  • Balcony

Front of building - upper level

  • Treatment rooms
  • Kitchen
  • Terrace garden

We were given the mandate by Angus Council elected members to progress our proposal for the future of the Communmity Centre. The requirement is that we engage and communicate with the public of Arbroath to establish how they feel about our proposal and to determine how much support there is in favour of transforming the centre into a Wellbeing Hub which will be run by the community for the benefit of the community.

You can take part in the survey here:

The survey will close on 15th August, so make sure you have your say. The countdown timer shows how much time is left.